NIKE Store Rabat - Custom Façade.
Comprehensive renovation and extension of an existing building in Rabat Agdal, Morocco. A new façade concept was implemented, to ensure maximum transparency while providing solar protection, and original inscription of the NIKE logo and JUST DO IT motto engraved on the vertical fins.
Before....
and after.
Overview
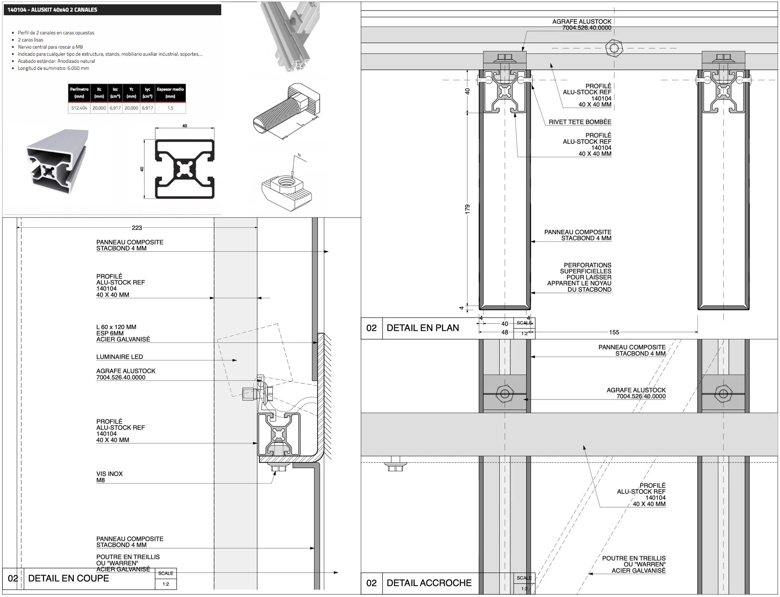
Construction details
From the left
From the right
How was this made?
See the following video for details on the creative and constructive process
