Villa Teresa House
Comprehensive renovation and extension of a 1934 house in Barcelona.
In collaboration with arch. Leonardo Mateo.
Landscape design by Andres Tabora.
Aquarelle by Carla Tabora
Façade drawing
Shortly after completion
Comprehensive renovation and extension of a 1934 house in Barcelona.
In collaboration with arch. Leonardo Mateo.
Landscape design by Andres Tabora.
Aquarelle by Carla Tabora
Façade drawing
Shortly after completion
Ground Floor
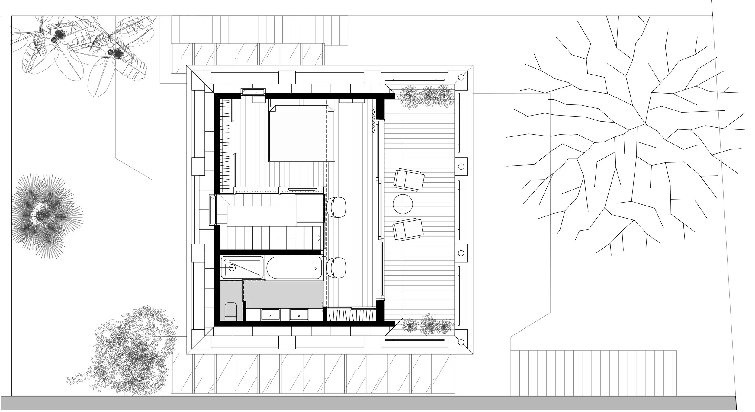
First Floor
Second Floor
Section 2
Section 1
Section 4
Section 3